Box Layout

html Layout
Backgroud Images
Backgroud Pattern
.
sponsors-img-1
sponsors-img-2
sponsors-img-2
sponsors-img-2
sponsors-img-2

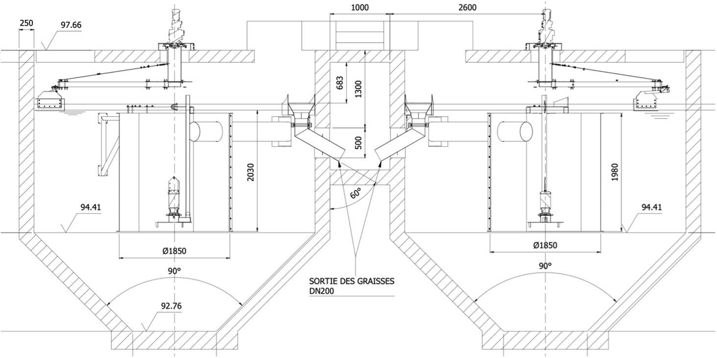
Circular Grit grease WE-DD

Introducing the innovative and space saving and efficient WE-DD system by West'Eco, designed with cutting-edge features to ensure optimal performance, uninterrupted operation, and maximum recovery. Manufactured in Europe in compliance with the EU and CE standards, this equipment is a testament to our commitment to quality and efficiency. With our grit and grease removal efficiency, you can expect an impressive 95% removal rate for sand and grease. What sets this system apart is its versatility, as it can also be used for scum removal in medium and small tanks when necessary. Composition: - Drive head with a gearmotor for efficient operation - Clifford or central drum for enhanced functionality - Diametral rotating scraper for thorough cleaning - Grease scraper for effective grease removal - Floating discharge hopper for easy disposal Operational philosophy: The paddle scraper, securely fixed on a concrete bridge and supported by a welded structure, features articulated arms that rotate on both ends. These scrapers diligently push the scum and grease towards the hopper and ultimately into the discharge pipe. The drum, positioned on a diametral axle and firmly attached to the wall on both sides, houses the air system and receives the raw wastewater. The air system is equipped with an air suction tube, tripod, support chain, and link for efficient operation. For added convenience, a sand pump can be installed either within the tank or externally, allowing for easy discharge into the classifier. To ensure the safety of the system, the WE-DD is equipped with a threshold electronic torque limiter. This feature can be installed by the customer in the electrical cabinet, providing an additional layer of protection. (optional) Experience the efficiency and reliability of the WE-DD system from West'Eco, designed to optimize performance, save energy and space, and deliver exceptional results.

Brochures dow:

DOWNLOAD.PDF